CLIFFSIDE

The Sunsets at this place are ridiculous.

22 East Haven, Suite 501
Toronto ON

Available for Sale
Listed for $365,000 with Offers Welcome Anytime

Condominum Apartment
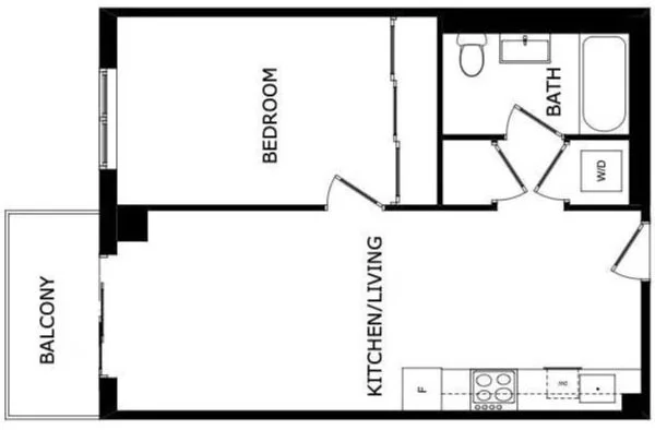
1 Bedroom + 1 Bathroom

Presented by Jon Tarabula as Lead Listing Agent

Life at Haven on the Bluffs has a way of slowing things down, in the best possible way.

This bright north-facing one-bedroom captures those big, cinematic sunset skies that roll in over the Bluffs, while keeping you tucked into a quiet, well-managed building where everything just feels easy. It is the kind of place that makes coming home feel like exhaling.

Inside, the layout is smart and intentional. The kitchen is clean and barely used, with finishes that feel fresh without trying too hard. The living area strikes that rare balance of cozy and functional, giving you space to unwind without any wasted square footage. The bedroom is generously sized, complete with double closets and built-in shelving that actually make daily life more organized. And the bathroom? Larger than expected, and one of those subtle luxuries that ends up mattering more than you think.

Beyond your front door, the building delivers on the lifestyle side of things. A 24-hour concierge and security bring peace of mind, while the fitness centre, rooftop terrace with BBQs, party room, guest suites, bike storage, and visitor parking make hosting, staying active, and day-to-day living feel seamless.

Step outside and the neighbourhood does what the Bluffs always do. Rosetta McClain Gardens, Bluffers Park, and the waterfront trails are all within easy reach, perfect for morning walks, sunset resets, or weekends by the water. Local cafés and shops add that neighbourhood charm, while nearby TTC access and major routes keep the rest of the city close when you need it.

This is a home that offers a little more breathing room without giving anything up. Quiet when you want it, connected when you need it, and always anchored by that natural beauty along the Bluffs.

Whether you are stepping into the market for the first time, simplifying your space, or adding a solid investment to your portfolio, this is one worth seeing in person.

The Property Details

Size // 1 Bedrooms + 1 Bath
SQFT // 500 SQFT Interior
Closest Intersection //
Cliffside Dr & Kingston Rd
Parking // None
Locker // None
Maintenance Fee // $390.67 / Month
Property Taxes // $1,236.70 / 2025

Next
Next

102 Greenfield Park, Corbyville ON